HRU Heat/energy recovery unit VERTIC 350
Price:
2055,00
€
205500
2948,00 €
294800
Qty: pcs
Files
Reventon HRU VERTIC 250. Heat/energy recovery unit
Toimituskulut: 80 €
Toimitusaika: 7-10 business days
Heat/energy recovery unit VERTIC 250
Product code: VERTIC-250-2047
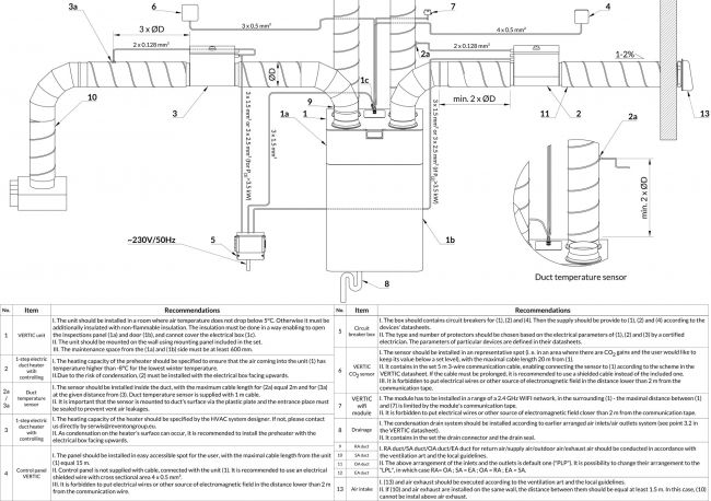
The VERTIC series features a vertical unit that enables mechanical ventilation with heat or both heat and moisture recovery (depending on the exchanger). The device is designed for indoor use in residential buildings, halls, storage rooms, service facilities, and other premises. It’s particularly useful when you want to install it on the floor, wall, or e.g. above a washing machine or a cupboard under the stairs. The unit can be paired with a polystyrene or polyethylene-graphene enthalpic exchanger.
Key features:
The VERTIC heat/energy recovery unit is specifically designed for spaces where standard ceiling-mounted installation is not possible. Its vertical design allows it to be installed on the floor, on a wall, or even above a washing machine.
The connection ducts are made of durable plastic and have diameters adapted to the most common sizes of ventilation ducts.
Additionally, accessing the filters and heat/energy exchanger is quick and easy - simply remove the unit's cover.
Additional
1-step electric duct heater with controlling
The single-stage duct heater with a controller is designed for such models from our offer as: INSPIRO recuperators, INSPIRO BASIC recuperators and VERTIC recuperators. The heater allows you to heat the air that flows through it to the set temperature (according to the flow direction). This is done thanks to the heater control system, which compares the temperature measured by the sensor with the temperature set by the user.
Toimitusaika: 7-10 business days
Heat/energy recovery unit VERTIC 250
Product code: VERTIC-250-2047
The VERTIC series features a vertical unit that enables mechanical ventilation with heat or both heat and moisture recovery (depending on the exchanger). The device is designed for indoor use in residential buildings, halls, storage rooms, service facilities, and other premises. It’s particularly useful when you want to install it on the floor, wall, or e.g. above a washing machine or a cupboard under the stairs. The unit can be paired with a polystyrene or polyethylene-graphene enthalpic exchanger.
Key features:
- Airflow ranges from 80 m³/h up to 500 m³/h (80-250 in Vertic 250 model)
- Counter-flow exchangers offering heat recovery OR both heat and moisture (VERTIC ENTHALPY)
- Moisture recovery efficiency up to 78%
- Heat recovery efficiency up to 90%
- 2 fans with EC motor
- 5-stage fan speed control
- Powder-coated steel housing
- Automatic bypass
- 2 built-in control panels
- Intelligent control panel VERTIC (optional)
The VERTIC heat/energy recovery unit is specifically designed for spaces where standard ceiling-mounted installation is not possible. Its vertical design allows it to be installed on the floor, on a wall, or even above a washing machine.
The connection ducts are made of durable plastic and have diameters adapted to the most common sizes of ventilation ducts.
Additionally, accessing the filters and heat/energy exchanger is quick and easy - simply remove the unit's cover.
Technical specification
| VERTIC 250 | VERTIC 350 | VERTIC 500 | |
|---|---|---|---|
| Product code | VERTIC-250-2047 | VERTIC-350-2048 | VERTIC-500-2049 |
| Nominal airflow [m3/h] | 80 - 250 | 100 - 350 | 105 - 500 |
| Rated current [A] | 1,0 | 1,9 | 2,9 |
| Heat recovery efficiency [%] | 90% | 87% | 88% |
| Voltage/frequency [V/Hz] | 230/50 | 230/50 | 230/50 |
| Motor power [W] | 137 | 272 | 412 |
| IP rating | X2 | X2 | X2 |
| Net weight [kg] | 40 | 40 | 50 |
| Noise [dB] | 35 | 37 | 39 |
| Energy class | A | A | A |
Additional
1-step electric duct heater with controlling
The single-stage duct heater with a controller is designed for such models from our offer as: INSPIRO recuperators, INSPIRO BASIC recuperators and VERTIC recuperators. The heater allows you to heat the air that flows through it to the set temperature (according to the flow direction). This is done thanks to the heater control system, which compares the temperature measured by the sensor with the temperature set by the user.



