LTO-kone Vertic 250 pystysuora
Hinta:
1795,05
€
179505
2671,89 €
267189
Määrä: kpl
Tiedostot
Reventon LTO-kone Vertic 250 pystysuora
Toimituskulut: 69,00 €
Toimitusaika: 7-10 arkipäivää
LTO-kone Vertic 250 pystysuora
Tuote koodi: VERTIC-250-2047
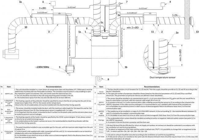
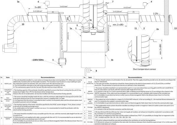
Lämmön-/energiantalteenottoyksikkö VERTIC
VERTIC-sarjassa on pystysuora yksikkö, joka mahdollistaa koneellisen ilmanvaihdon lämmön tai sekä lämmön että kosteuden talteenotolla (lämmönvaihtimesta riippuen). Laite on suunniteltu sisäkäyttöön asuinrakennuksissa, halleissa, varastoissa, huoltotiloissa ja muissa tiloissa. Se on erityisen hyödyllinen, kun haluat asentaa sen lattialle, seinälle tai esimerkiksi pesukoneen tai portaiden alle olevan kaapin yläpuolelle. Yksikkö voidaan yhdistää polystyreeni- tai polyeteeni-grafeeni-entalpiavaihtimeen.
Tärkeimmät ominaisuudet:
Liitoskanavat on valmistettu kestävästä muovista ja niiden halkaisijat on mukautettu yleisimpiin ilmanvaihtokanavien kokoihin.
Lisäksi suodattimiin ja lämmön-/energianvaihtimeen pääsee käsiksi nopeasti ja helposti – poista vain laitteen kansi.
Toimitusaika: 7-10 arkipäivää
LTO-kone Vertic 250 pystysuora
Tuote koodi: VERTIC-250-2047
Lämmön-/energiantalteenottoyksikkö VERTIC
VERTIC-sarjassa on pystysuora yksikkö, joka mahdollistaa koneellisen ilmanvaihdon lämmön tai sekä lämmön että kosteuden talteenotolla (lämmönvaihtimesta riippuen). Laite on suunniteltu sisäkäyttöön asuinrakennuksissa, halleissa, varastoissa, huoltotiloissa ja muissa tiloissa. Se on erityisen hyödyllinen, kun haluat asentaa sen lattialle, seinälle tai esimerkiksi pesukoneen tai portaiden alle olevan kaapin yläpuolelle. Yksikkö voidaan yhdistää polystyreeni- tai polyeteeni-grafeeni-entalpiavaihtimeen.
Tärkeimmät ominaisuudet:
- Ilmavirtausalue (m³/h) 80 - 250 (Vertic 250)
- Vastavirtausvaihtimet, jotka tarjoavat lämmön TAI sekä lämmön että kosteuden talteenoton (VERTIC ENTALPIAA)
- Kosteuden talteenoton hyötysuhde jopa 78 %
- Lämmöntalteenoton hyötysuhde jopa 90 %
- 2 puhallinta EC-moottorilla
- 5-portainen puhaltimen nopeuden säätö
- Pulverimaalattu teräskotelo
- Automaattinen ohitus
- 2 sisäänrakennettua ohjauspaneelia
- Älykäs ohjauspaneeli VERTIC (lisävarute)
Liitoskanavat on valmistettu kestävästä muovista ja niiden halkaisijat on mukautettu yleisimpiin ilmanvaihtokanavien kokoihin.
Lisäksi suodattimiin ja lämmön-/energianvaihtimeen pääsee käsiksi nopeasti ja helposti – poista vain laitteen kansi.
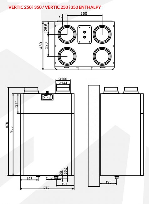
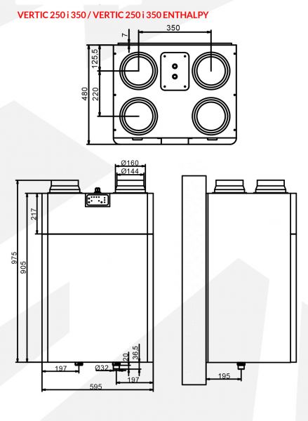
Tekniset tiedot
| VERTIC 250 | VERTIC 350 | VERTIC 500 | |
|---|---|---|---|
| Tuote koodi | VERTIC-250-2047 | VERTIC-350-2048 | VERTIC-500-2049 |
| Nimellinen ilmavirta [m3/h] | 80 - 250 | 100 - 350 | 105 - 500 |
| Nimellisvirta [A] | 1,0 | 1,9 | 2,9 |
| Lämmöntalteenoton hyötysuhde [%] | 90% | 87% | 88% |
| Jännite/taajuus [V/Hz] | 230/50 | 230/50 | 230/50 |
| Moottorin teho [W] | 137 | 272 | 412 |
| IP-luokitus | X2 | X2 | X2 |
| Netto paino [kg] | 40 | 40 | 50 |
| Melutaso [dB] | 35 | 37 | 39 |
| Energialuokka | A | A | A |



